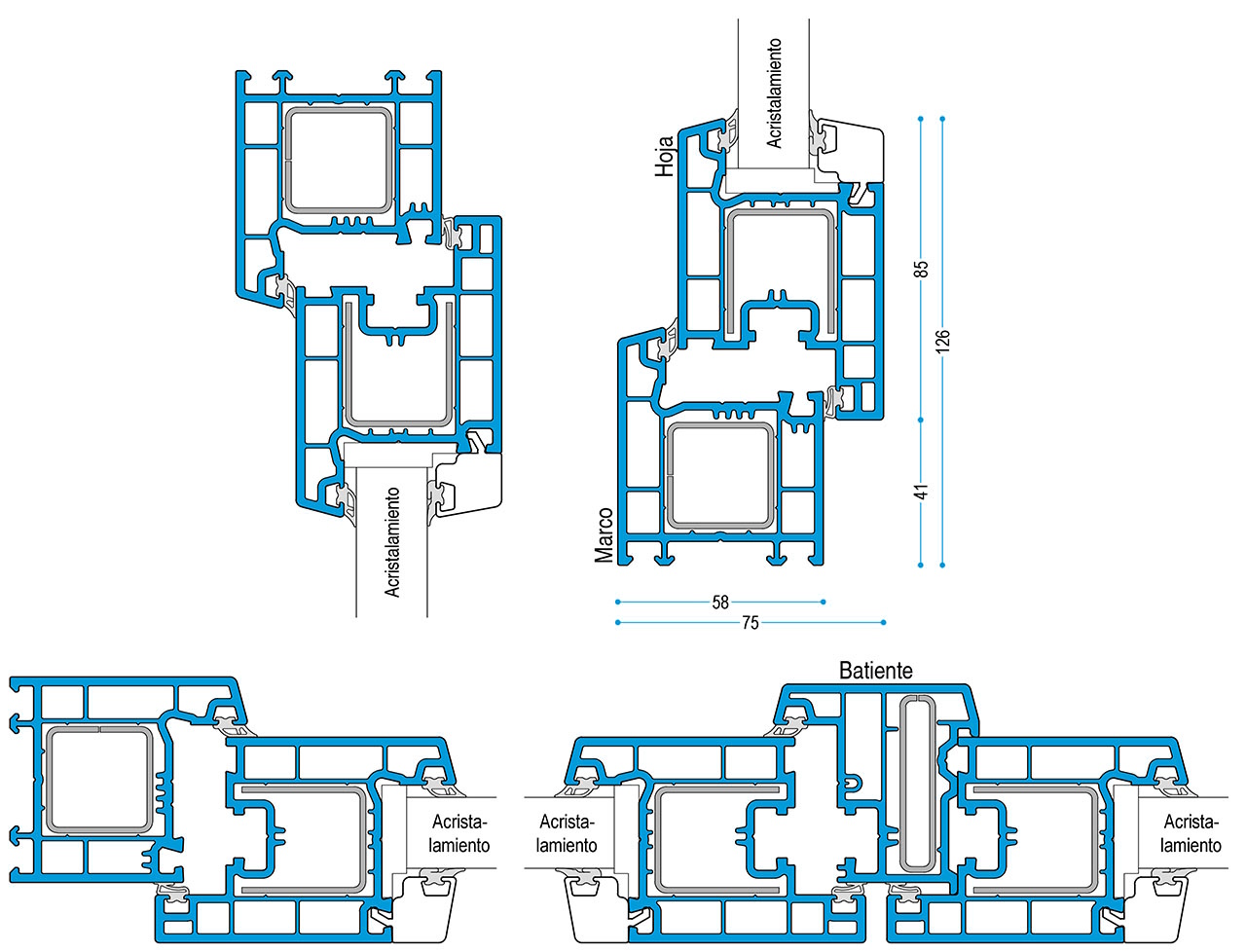
El sistema Doble Contacto es el más complejo y comprende sistema practicable, oscilobatiente de doble posibilidad de abertura, banderola y proyectante en todas las series, todos
estos sistemas pueden ser de 2 hojas.
Aceptan Paño Fijo (mediante poste) y Mosquitero.
Marco y hojas reforzados con refuerzo de hierro galvanizado.
Burlete de estanqueidad de EPDM exterior e interior en hoja y marco sellándolos perimetralmente.
Contamos con la más amplia gama de colores en carpintería de PVC foliado del mercado, tonos madera, opacos y brillantes acompañan con elegancia y calidez sus proyectos.
Disponibles en todos los sistemas, series y Accesorios.









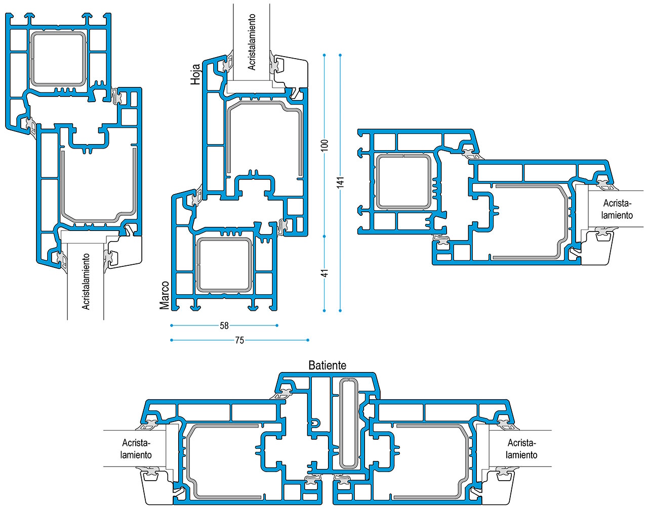
Ventanas de PVC con sistemas de apertura: oscilobatiente, proyectante y pivotante. Fabricamos ventanas con perfiles eficientes capaces de alcanzar los mejores valores de aislamiento térmico....
Disponemos de una amplia gama de productos para cada necesidad, diseñadas para resolver aberturas en viviendas y edificios. Además, brindamos una gran variedad de soluciones complementarias....